1. Sound absorbing sawdust concrete hollow brick TECHBUD CS-24-1-30

    1.1. General characteristics
    1.2. Acoustic characteristics

  2. Sound absorbing sawdust concrete hollow brick TECHBUD CS-24-1-30-T

    2.1. General characteristics
    2.2. Acoustic characteristics

  3. Sound absorbing sawdust concrete slab TECHBUD CS-50-T

3.1. General characteristics
3.2. Acoustic characteristics

  1. Sound absorbing sawdust concrete slab TECHBUD CS-100-OT

    4.1. General characteristics
    4.2. Acoustic characteristics

  2. Acoustic baffle TYPE I

    5.1. General characteristics
    5.2. Acoustic characteristics

  3. Acoustic baffle TYPE II

6.1. General characteristics
6.2. Acoustic characteristics

  1. Acoustic baffle TYPE III

    7.1. General characteristics
    7.2. Acoustic characteristics

  2. Acoustic baffle TYPE IV

    8.1. General characteristics
    8.2. Acoustic characteristics

    1. Acoustic baffle TYPE V
    2. 9.1. General characteristics

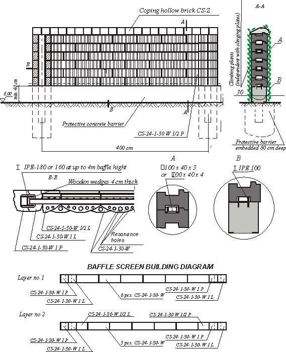
      A) BAFFLE SCREEN ELEMENTS

      1) Ground beam 22 ÷ 30 cm wide, approximately 50 cm high (construction acc. to calculation) - prefabricated

      2) IPE I-bar - 100mm half-immersed in ground beam

      3) IPE steel poles - 180 or 160 with baffle hight up to 4 m, - HEB steel poles - 180 with baffle hight beyond 4 m, embedded in concrete acc. to the technical project. Distance in pole axes amounts to 4m (it can be smaller, depending on local conditions)

      4) Closed profile 100 x 40 x 3 or 100 x 40 x 4 layed along the screen in grooves of sound absorbing sawdust concrete hollow bricks - in every second layer - inserted in vertical pole flanges

      5) Sound absorbing sawdust concrete hollow bricks

      a) Sound absorbing sawdust concrete hollow brick CS-24-1-30W dimensions: 60cm long x 35cm wide x 20cm high, with resonance holes

      b) Sound absorbing sawdust concrete hollow brick (left half-header) CS-24-1-30 W 1 L dimensions: 30cm long x 35cm wide x 20cm high

      c) Sound absorbing sawdust concrete hollow brick (righ half-header) CS-24-1-30 W 1 P dimensions: 30cm long x 35cm wide x 20cm high

      d) Sound absorbing sawdust concrete hollow brick (left half-header - for pole casing) CS-24-1-30 W 1 L dimensions: 20cm long x 30cm wide x 20cm high

      e) Sound absorbing sawdust concrete hollow brick (roght half-header - for pole casing) CS-24-1-30 W 1 P dimensions: 20cm long x 30cm wide x 20cm high

      6) Coping hollow brick (concrete) CS-Z dimensions: 20cm long x 44cm wide x 18cm high

       




      Set of sawdust concrete elements for baffle type V



      B) BAFFLE SCREEN BUILDING

      Building baffle type V from sound absorbing sawdust concrete hollow bricks CS-24-1-30-W on protective concrete parapet

       

      Baffle type V from sound absorbing sawdust concrete hollow bricks CS-24-1-30-W (perspective)



      9.2. Acoustic characteristics

      Baffle acoustic insulation as tested amounts to:

      Rav = 55 dB

      Fig. 2. Location of observation points O1 and O2 in relation to which comparative evaluation of baffle efficiency was conducted

      Acoustic efficiency is presented in the table below:

      9.3. Baffle assembling

      1) Acoustic baffle type IV is assembled on ground beam (with horizontal insulation) with steel poles HEB180 or HEB160 embedded in concrete, IPE - 180 or 160. In the groud beam there is a I-bar IPE100 half embedded in concrete - its protruding part forms a channel bar.


      2) Sound absorbing sawdust concrete hollow bricks with upper and lower recesses for placing of 100x40x3 profiles, and with side locks used for clamping the hollow bricks in vertical planes are placed on the above-mentioned construction.
      Placement of hollow bricks in horizontal layer begins at the left of vertical pole in the following order:


      - hollow brick CS-24-1-30 W 1 L

      - 6 hollow bricks CS-24-1-30-W

      - hollow brick CS-24-1-30 W 1 P

      ATTENTION !
      In the second layer following hollow brick CS-24-1-30 W 1 hollow brick CS-24-1-30 1 L should be placed, and after that 5 hollow bricks CS-24-1-30-W and 1 hollow brick CS-24-1-30 1 P as well as CS-24-1-30-W 1P.

      The whole forms passing hollow brick construction shifted by half of hollow brick module CS-24-1-30-W.

      - Closed steel profile is positioned after placing two hollow brick layers

      - 100 x 40 x 3 or 100 x 40 x 4 into hollow brick depressions by inserting it into vertical pole flanges and wedging

      - Concrete coping hollow bricks CS-Z are fixed (with glue or mortar) on the top part after building the screen up to desired hight

      - After building the whole baffle screen its surface is painted twice with a paint gun using special polymer-mineral paint acc. to appropiate graphical design

      - Hollow bricks have to be clear of comtaminants (lubricants, glue, etc.) prior to painting. Painting should follow directly after assembling

      - Construcion poles as well as I-bars and closed steel profiles should be protected with anticorrosion paint

      - After assembling the whole screen, climbing plants should be planted on its both sides - 1m spacing (independent with clinging plates). Back wall surface has grooves which facilitate clinging and growth of climbers.

    ATTENTION !
    Technical documentation compatible with regulations - norms applicable in this capacity should be drawn for each baffle screen.


    Assembling of baffles type V

     

     

    9.4.Main advantages of baffle type type V:

    1) Simple and easy to assemble construction (which influences assembly speed) - the whole sound absorbing sawdust concrete elements baffle screen is assembled on ground beam between two steel construction poles.

    2) Since small-dimension hollow bricks are used (the heaviest one weighs about 32kg), assembling is manual, without necessity to use crane devices.

    3) Since construcion poles as well as I-bars and closed steel profiles are encased in hollow bricks, they do not require maintenance during exploitation.

    4) Since hollow bricks are assembled using vertical and horizontal locks (without using glue or mortar), this baffle screen can be both assembled and disassembled in the course of winter period.


    5) Acoustic baffle screens are painted after building. The most attractive visually colour-graphical styles can be used as appropiate (thirteen TECHBUD Acoustic Baffle colour forms included). Their aesthetics allow for their harmonious incorporation into sorrounding landscape.


    6) Depending on usres opinions on baffle aesthetics, back wall of the screen (facing houses and housing eststes) has grooves and can also be painted acc. to the same colour styles.


    7) In order to make screens more attractive visually on both sides climbing plants can be planted – to cover the whole surfaces ( a picture of TECHBUD baffle screens included)


    8) Expected lifetime of baffles is estimated for 50 years minimum, and durabilityof polimer-mineral coat – for 25 years minimum (as guaranteed by paint producer).


    9) Screens biult in the above described technology are easy to keep clean because they can be washed with water.


    10) Acoustic parametres:

    - Acoustic insulation = 50 dB

    - Acoustic efficiency = 11 ÷ 14 dB

    Simple yet durable construction and quick assembling of baffle screens, competitive price, vitality, and elimination of costly and troublesome continuous maintenance of metal elements, and above all outstanding acoustic and visual assets place these baffle screens on the top among other technologies.

     

 
  1. Acoustic baffle TYPE VI

    10.1. General characteristics
    10.2. Acoustic characteristics
    10.3. Assembly
    10.4. Advantages

     

  • Basic data
  • Execution
  • Graphical design
  • News
  •   home